Spacieux et lumineux appartement 2 chambres

2

Chambres à coucher

1

Salles de bains

90 m²

Surface Habitable

90 m²

Surface du terrain

975 €

Prix

visite virtuelle

plans

Présentation du bien

 

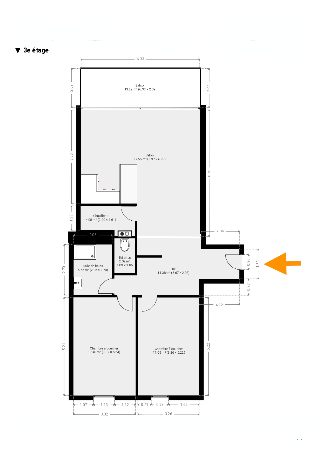
Libre d’occupation. Spacieux et lumineux appartement 2 chambres avec cave individuelle + emplacement de parking et garage sous-terrain, au 3 ème étage d’une toute récente résidence avec vue dégagée sur la Meuse, en face du Ravel. Séjour lumineux donnant accès à la terrasse de 14 m2, cuisine équipée (four, frigo, taque gaz, lave-vaisselle, hotte), spacieuse buanderie séparée avec coin lessive, salle de bain (douche), WC indépendant, 2 chambres (17m2 et 18m2 extra-muros). Très belle situation à deux pas du centre de Andenne. Loyer : 975 euros et provision charges de 80 euros pour les communs (comprenant l’entretien de la chaudière). PEB : A (78 kWh/m2.an) n°20191106013543. Cette annonce ne constitue pas une offre

Adresse

Rue Wilgot n°5/3 à 5300 Andenne 

Voir nos autres biens